A DESIGN ALIGNED WITH THE COMMUNITY
The Centre has been architecturally designed both for exemplary function, and to blend well with neighbouring properties reflecting Casuarina’s character.
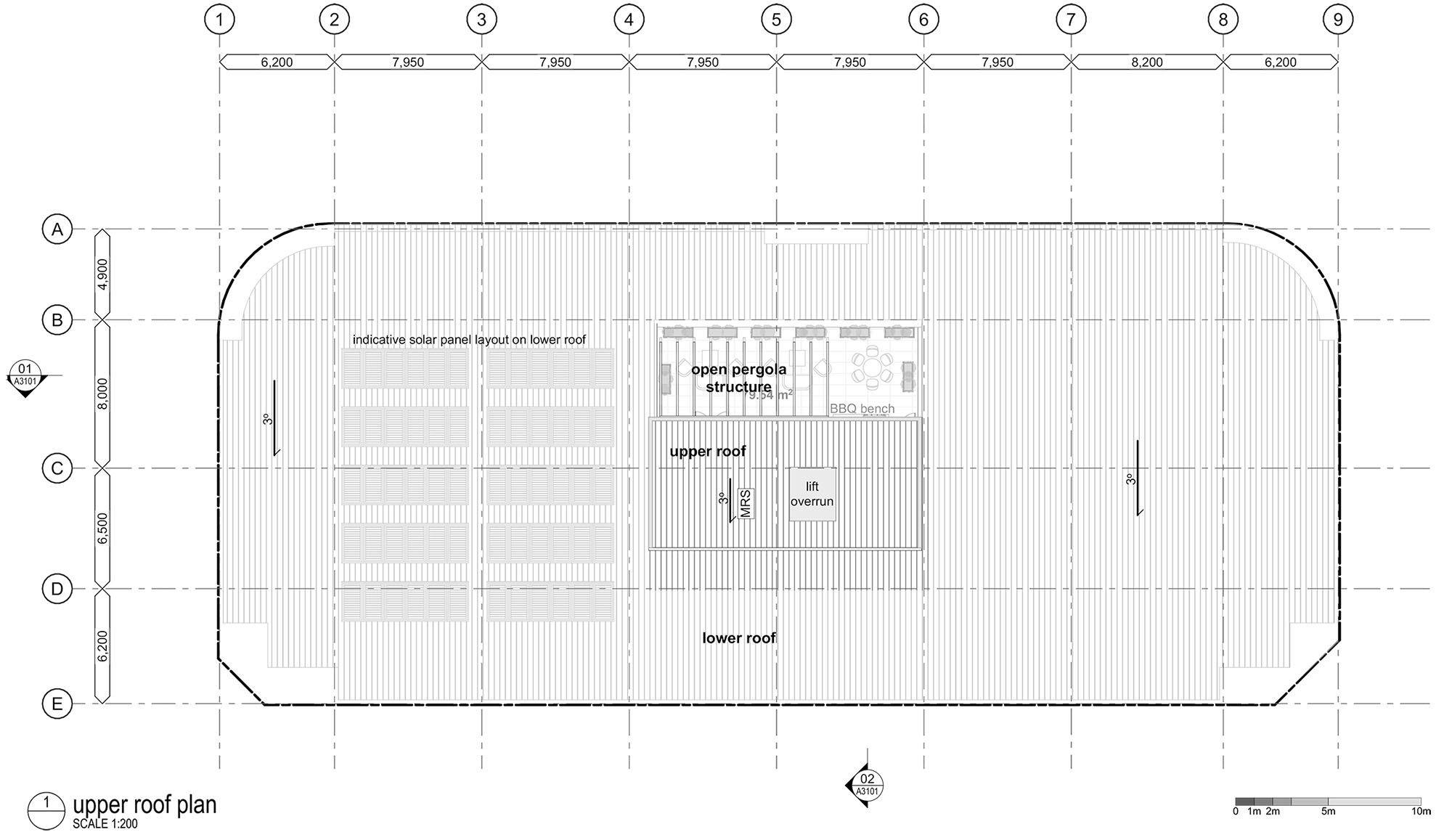
- The proposed three storey building would provide a partial fourth storey, in the form of a rooftop terrace. The terrace would be set back from the building edges and will not be visible from the street.
- The rooftop terrace will provide a private space for clinical staff and their patients to utilise.
- The proposed building form is of a scale and design that is consistent with the existing character of the neighbourhood, with the ground floor to include a cafe which will improve the vitality of the town centre.
- Ground floor services would accommodate uses with higher patient frequency such as pathology, audiology and optometry, which benefit from direct street front access.
TRAFFIC AND PARKING
Parking and traffic flow management have been carefully considered in the proposed design concepts—our specialists understand the impact of good parking on patient access.
- To ensure our patients have plenty of parking, the scheme proposes 101 on-site car parking spaces (85% in basement level) to more than meet the need.
- To complement existing on-street parking, a dedicated Centre carpark will provide ground and basement level parking, with carpark entry and exit from Sunray Lane.
- Specialist appointments are longer in duration than appointments at traditional medical centres, resulting in less traffic movement.

Artist’s impression: Front view of Casuarina Specialist Centre.

Artist’s impression: Entries/exits to/from basement carpark will be from Sunray Lane.
COMMUNITY
BENEFITS

Specialised health services in one convenient location

Reduced reliance on Brisbane, Gold Coast & Sydney services

Local doctors treating local patients

Carefully considered architectural designs

Increased clinical collaboration

Appealing street frontages

Better patient experiences and outcomes

Generous patient parking

Catering for the health needs of Northern Rivers region



